A Quality 2 Bedroom Private Home
located in the quiet Mt. Tolmie area of Victoria, BC
Special attention given to space & sound separation.
No one lives above or below.
Off-street parking for 2 cars.
(1 dedicated space)
Smoke-free.
Small dog considered.
Bright rooms with ample windows.
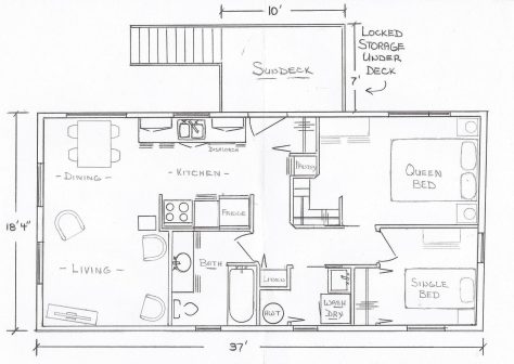
Custom-designed cabinetry. Lower cupboards are convenient pull-out drawers. Built-in pantry.


Full-sized appliances, a microwave & a quiet Bosch dishwasher.
Queen bedroom & second bedroom have generous closets and windows.


4-piece bathroom with vanity, large counter & 6 storage drawers.
Laundry room includes HE front-loading washer & dryer, laundry sink, upper cupboard & personal full-size hot water tank.
Solid wood flooring throughout.
Private sun deck & yard space.
Secure storage locker under the deck.
Storage for recycling bins in a separate enclosure under the stairs.
Municipal utilities & yard maintenance included.
Separately metered electrical.
Seeking a stable, long-term tenant.
This custom-designed 700+ square feet of living space was built by a professional contractor & is a municipally registered accommodation.
1-year lease offered at $ 1,875 /month,
starting May 1, 2026.
CALL (no texts)
250-220-5212
Click Here for a printer-friendly version:
Carriage House.
-30-








